Bunker für Projektentwicklung (Wohnungen) im Harburger Phoenix-Viertel

Bunker für Projektentwicklung (Wohnungen) im Harburger Phoenix-Viertel

Kaufpreis 790.000 EUR
Zimmer 32
Wohnfläche 680m²

Objektbeschreibung

Der Hochbunker ist ein ehemaliges Schutzbauwerk, das im Jahr 1942 erbaut wurde. Nach dem Krieg wurde der Bunker in den 1960er Jahren wieder aktiviert und an die damaligen Bedrohungssituationen angepasst. Heute befindet sich der Bunker im Privatbesitz und wird derzeit ausschließlich als Lager genutzt. Das Bauwerk ist trocken und wurde auf einer Grundfläche von 20,20 x 17,75 Metern errichtet. Es erstreckt sich über sechs Ebenen mit einer Gesamtfläche von etwa 855 m². Die Decken sind circa 1,40 Meter stark, die Wände etwa 1,10 Meter dick, und die Höhe des Bunkers beträgt rund 16,70 Meter. Ein funktionierendes Be- und Entlüftungssystem ist vorhanden.

Der Bunker schließt straßenfrontlich an die Lasallestraße an und grenzt unmittelbar an Geschosswohnungsbau. Er verfügt über drei ebenerdige Eingänge sowie zwei Schleusen. Eine Nutzungsänderung zu Wohnungen wird von der Stadt begrüßt; eine entsprechende Entwurfsplanung für den Umbau inklusive Anbauten wie Balkonen und Aufzug liegt bereits vor. Für eine endgültige Genehmigung sowie eine mögliche Aufstockung sind weitere Abstimmungen mit dem Bauamt erforderlich.

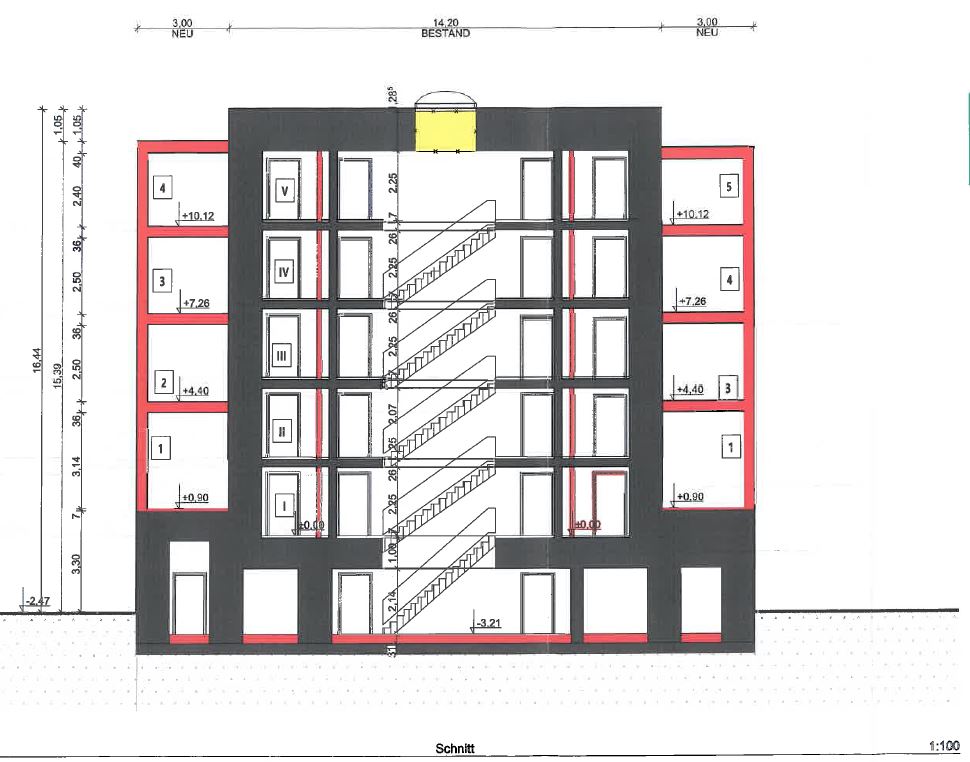
Im Untergeschoss befinden sich Technikräume, sowie Platz für mögliche Kellerräume für die Bewohner, Müll- und Fahrradräume. Darüber liegen noch fünf Geschosse, wobei die Böden und Decken im zukünftigen Wohnbereich angepasst werden müssen, um die erforderliche Raumhöhe zu erreichen (siehe Schnitt). Geplant sind vier Etagen mit z. B. jeweils vier Zwei-Zimmer-Wohnungen, insgesamt also 16 Wohneinheiten. Das Treppenhaus befindet sich im Zentrum des Bunkers; ein Aufzug könnte seitlich in einem Anbau ergänzt werden. Das Grundstück hinter dem Bunker kann als Kinderspielfläche genutzt werden.

Objektdaten

Ort
21073 Hamburg
Wohnfläche
680m²
Nutzfläche
855m²
Grundstücksfläche
480m²
Anzahl Zimmer
32
teilbar ab m²
680m²
Kaufpreis
790.000€
MwSt.
Inkl. 19%
Provisionspflichtig
Ja
Außenprovision
6,25 % inkl. MwSt. (exkl. MwSt.)
Baujahr
1942

Ausstattung

Elektrik und Lüftungsanlage des Bunkers wurden zuletzt ca. 1989 vor dem Mauerfall erneuert.
Auf dem Dach des Bunkers befindet sich derzeit eine Mobilfunkantenne, welche Mieteinnahmen generiert.

Lage

Das Objekt liegt in einer schönen Wohnstraße hinter dem Phoenix-Center, unweit des Harburger Bahnhofs. Mit der S-Bahn ist der Hamburger Jungfernstieg in etwa 19 Minuten erreichbar.

Das ehemalige Schutzbauwerk befindet sich im Hamburger Bezirk Harburg, im sogenannten Phoenix-Viertel, nahe dem gleichnamigen Einkaufszentrum, einer modernen Shopping-Mall. Das Viertel wurde zur Gründerzeit als typisches Arbeiterviertel erbaut. Die Fußgängerzone sowie der S- und Regionalbahnhof Harburg sind in wenigen Minuten zu Fuß erreichbar.

Dank des Autobahnzubringers A253 im Süden Harburgs und der A7 ist die Verkehrsanbindung sehr gut gewährleistet. In der Umgebung befinden sich soziale Einrichtungen wie Kindergärten, Schulen, die Technische Universität sowie kulturelle Angebote. Das Stadtviertel zeichnet sich durch eine Bebauung mit gründerzeittypischen Altbauten aus.

Google Maps

Mit dem Laden der Karte akzeptieren Sie die Datenschutzerklärung von Google.
Mehr erfahren

Karte laden

Immobilienmakler Felix Sinn
Ihr Ansprechpartner
Felix Sinn, Immobilienmakler
IV ImmoVerkauf Hamburg GmbH
Friedrich-Vorwerk-Str. 13-15
21255 Tostedt

Nehmen Sie Kontakt
mit uns auf!

Per Telefon, E-Mail oder Kontaktformular stehen Ihnen alle Türen offen. Auch können Sie direkt online einen Termin vereinbaren. Wir freuen uns über Ihre Kontaktaufnahme. Ein Erstgespräch ist selbstverständlich kostenlos.

Immobilienmakler Felix Sinn
Ihr Ansprechpartner:
Felix Sinn, Immobilienmakler
Ihre Daten
Wie können wir Ihnen helfen?